Друга черга ТРЦ Мегамолл істотно посилить концепцію
Друга черга ТРЦ Мегамолл складатиметься з трьох рівнів і створить додаткові концептуальні переваги об’єкта.
Цей текст доступний також російською мовою
У місті Вінниця триває будівництво другої черги ТРЦ Мегамолл. Згідно з програмою реконцепції, розробленої компанією UTG, нова черга орендною площею 10 000 кв. м дозволить підсилити склад орендарів і розважальної складової торгово-розважального центру. Завдяки розширенню ТРЦ Мегамолл стане найбільшим ТРЦ Вінниці.
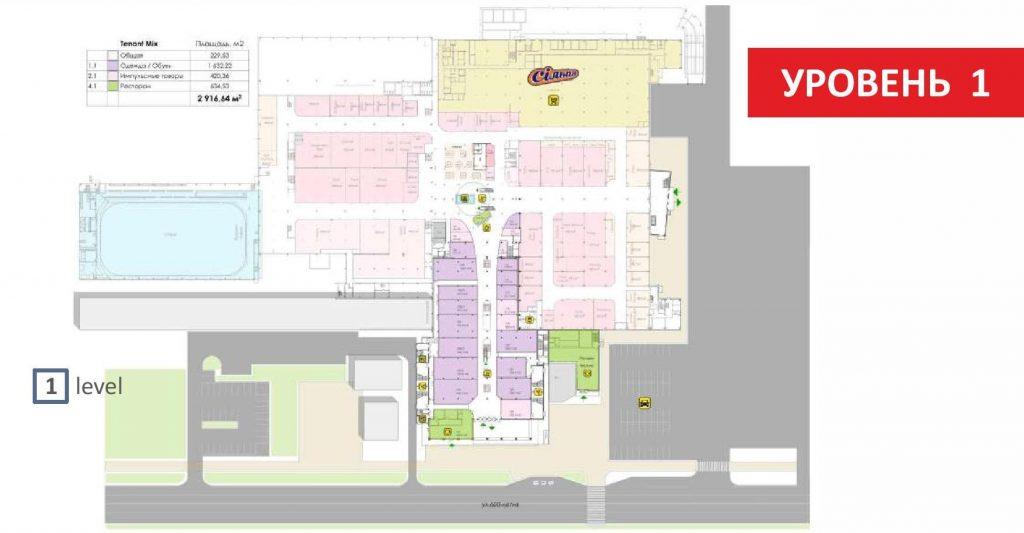
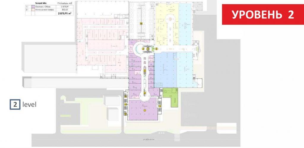
Згідно з концепцією, друга черга складається з трьох рівнів. Верхній поверх повністю відведений під розважальну частину. Тут розміститься сучасний багатозальний кінотеатр, дитячий розважальний центр і зона громадського харчування, завдяки чому відбудеться істотне посилення діючих в першій черзі Мегамолл зон боулінгу та караоке. Другий поверх відведений під магазини одягу та взуття середнього цінового сегмента, що значно урізноманітнює пропозицію ТРЦ. На першому поверсі другої черги розмістяться великий фасадний ресторан і кілька універмагів. В рамках реконцепції, також, передбачено створення ювелірного кварталу.
«Запуск в експлуатацію другої черги, без сумніву, створить додаткові концептуальні переваги об’єкта, урізноманітнить товарну пропозицію ТРЦ, що в свою чергу приверне нових відвідувачів», – підкреслила значення нової черги директор компанії UTG Євгенія Локтіонова.

Для найбільшої зручності відвідування ТРЦ обидві черги будуть об’єднані загальним фасадом, створеним з урахуванням сучасних технологій. «В даний час, маючи 55 000 кв. м загальної площі і близько 32 000 кв. м орендованої, торговий центр відчуває нестачу площ для розміщення професійного багатозального кінотеатру, універмагів одягу, які зацікавлені відкрити перші магазини в регіоні, і яких ми хотіли б залучити в свій проект, – зазначає керівник відділу маркетингу ТРЦ Анастасія Тарасюк. – Отже, завдяки другій черзі, яка збільшить орендну площу ТРЦ на 10 000 кв. м до 42 000 кв. м, з’явиться можливість додати нових операторів вітчизняних та зарубіжних брендів, ще не представлених в об’єкті».
Відкриття нових якорів, посилення торговельної та розважальної складової проекту призведе до того, що ТРЦ Мегамолл на довгі роки стане найбільш конкурентоспроможним об’єктом торговельної нерухомості в регіоні.


Читайте також
Вінницький ТРЦ Мегамолл: хочеш бути першим – постійно змінюйся
Читайте також
Лондонський первісток: як виглядає найбільший у Європі флагман Puma у концепції Field of Play, аналог якого є лише в Києві (фото)
