Замість ТРЦ на Поштовій пропонують побудувати музей археології
Київраді пропонують виплатити компенсацію інвестору ТРЦ на Поштовій. Про її розмір буде домовлятися КМДА.
26 грудня комісія Київради з питань власності підтримала проект рішення про створення на Поштовій площі музею археології замість ТРЦ, який планувався раніше. Про це повідомляється на сайті Київради. Як пише delo.ua, проект рішення “Про забезпечення збереження пам’ятки археології місцевого значення і розміщення музею на ділянці прибережного міського кварталу Середньовічного Києва (XI-XIX ст.) на Поштовій площі в місті Києві” депутати підтримали одноголосно.
Згідно з проектом рішення, комунальна організація “Музей історії міста Києва” повинна оформити право постійного користування земельними ділянками площею 0,83 га в межах вулиць Набережно-Хрещатицька, Набережне шосе, Боричевого узвозу та Володимирського узвозу. Тут пропонується розмістити музей. Але для того, щоб створити музей, місто має припинити договір з інвестором будівництва підземного ТРЦ на Поштовій площі.
“Я не бачу ніякого варіанти компромісу. Тому що його зведуть до того, скільки інвестор зможе віддати місту “з барського плеча” (100 кв. м або 200 кв. м). Єдиний компроміс — інвестор піде, а місто стане власником проекту”, — повідомив Delo.UA ініціатор проекту рішення, депутат Київради Сергій Гусовський.
Як повідомили Delo.UA у партії Самопоміч, Київраді буде запропоновано припинити, а не розірвати договір з інвестором. “Після того, як Київрада підтримає таке рішення, буде створена робоча група КМДА. Вона вступить з інвестором у переговори, щоб відшкодувати йому збитки”, — повідомили в партії.
Delo.UA спробувало зв’язатися з інвестором будівництва ТРЦ на Поштовій площі компанією “Хенсфорд Україна”, щоб дізнатися про її позицію щодо можливого припинення договору. Проте кореспонденту ніхто не відповів.
Також документ передбачає укладення угоди між музеєм історії міста Києва та державним підприємством “Центр археології Києва Інституту археології НАН України” для продовження археологічних розкопок на цьому місці.
Комісія з питань власності — друга поспіль комісія Київради, яка проголосувала “за” проект рішення. Раніше, 19 грудня, документ підтримали члени постійної комісії з питань культури, туризму та інформаційної політики. Наступна комісія, яка буде розглядати ініціативу — з питань містобудування, архітектури та землекористування.
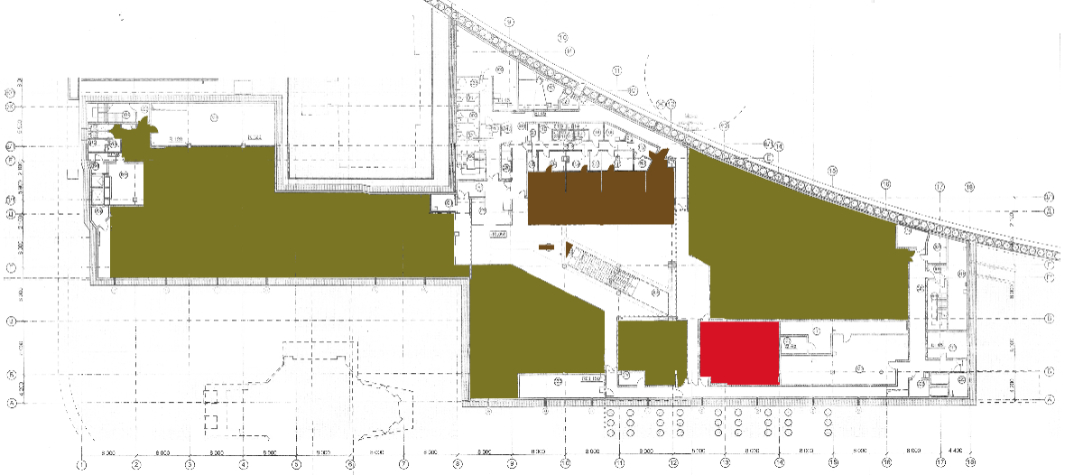
Нагадаємо, починаючи з 2015 року на Поштовій площі, під час підготовчих робіт до будівництва торгово-розважального центру археологи знайшли унікальні артефакти XI-XII століть. Також замість необхідних 1000 кв. м інвестор пропонує під музей всього лише 110 кв м.

Схема -2-го поверху майбутнього торгового центру. Червоним відмічено місце, де буде знаходитися музей
“Насправді цього дуже мало. Це лише одна десята необхідної площі. Для цього об’єкта необхідно хоча б 1000 кв. м (площа розкопок складає близько 2000 кв. м — Delo.UA). Така площа необхідна для створення музею абсолютно нового типу”, — керівник розкопок на Поштовій площі Максим Вакулюк.
Зазначимо, що бюджет на 2018 рік не передбачає кошти на будівництво музею на Поштовій площі.
Джерело: delo.ua
Читайте також
У Києві за три квартали не відкрився жоден торговий центр – JLL
Читайте також
Рекордні прирости обороту, запуск нових форматів і розширення асортименту у 2,5 раза: результати 2025 року мережі Будинок Іграшок
